Η κατοικία βρίσκεται στο Χαλάνδρι, στο γνωστό και μη εξαιρετέο ρέμα της Σαρανταπόρου. Πρόκειται για παλιά τριπλοκατοικία οροφοδιαμερισμάτων με …βεβαρυμμένο παρελθόν αδειοδοτήσεων και αυθαιρεσιών! Χαρακτηριστικά, η ιδιοκτήτρια είχε κάνει δύο ακόμη (μάταιες) προσπάθειες αδειοδότησης για την συγκεκριμένη προσθήκη.
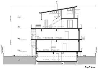
Ο πέτρινος φέρων οργανισμός στο υπάρχον ημιυπόγειο είναι χτισμένος περί το 1940 με τα ίδια τα χέρια των τότε ιδιοκτητών. Εκεί μένει η γιαγιά! Το επίσης υπάρχον ισόγειο και α’ όροφος είναι μεταγενέστερη κατασκευή των αρχών του ‘80 από οπλισμένο σκυρόδεμα. Εκεί μένει η μητέρα! Σε τρίτη φάση, σήμερα, προστέθηκε β’ όροφος από συστήματα ξηράς δόμησης αφού ο «κακοδουλεμένος» και παλιός φέροντας οργανισμός δεν θα μπορούσε να αντέξει περισσότερα φορτία! Εκεί θα μείνει η κόρη! Με αμαρτήματα υπερβάσεων δόμησης στις πλάγιες αποστάσεις και πράξεις εξαίρεσης από κατεδάφιση τέθηκε επιπλέον περιορισμός στο δικαιούμενο κέλυφος της δόμησης. Οι πλάγιες αποστάσεις και τα ύψη έπρεπε να τηρηθούν!
Μιλώντας όμως για εκείνες τις δουλειές που δεν περιορίζονται στην ιδανική αποστειρωμένη (όπως πολύ θα την θέλαμε) αρχιτεκτονική, αλλά ολοκληρώνονται αφού προηγηθεί και μια γενναία σειρά διαδικασιών με το ελληνικό δυσκίνητο και ευθυνόφοβο δημόσιο… Μιλώντας για μια ιδιοκτησία που επ’ ουδενί δεν θα μπορούσε να διαχειριστεί ένα σύνολο αλληλένδετων ενεργειών και διαδικασιών… η συγκεκριμένη εργασία τελικά περιελάμβανε επιπλέον τα παρακάτω:
Αποχαρακτηρισμό ρέματος από τις αρμόδιες υπηρεσίες της ΕΥΔΑΠ.
Έγκριση Δόμησης από την Διεύθυνση Κατασκευής Υδραυλικών Έργων.
Ολοκλήρωση Γ' φάσης αυθαιρέτου από το τμήμα αυθαιρέτων της πολεοδομίας.
Ολοκλήρωση εκκρεμούς διαδικασίας πράξεων προσκυρώσεων.
Αλλαγή προσώπου οικοπέδου από το παλαιόθεν πρόσωπο επί πλαϊνής ιδιωτικής οδού.
Διορθωτική δήλωση Κτηματολογίου.
Άδεια προσθήκης 52m2 από την πολεοδομία.
Πραγματική στατική μελέτη (εφαρμογής) διαφορετική από την μελέτη της αδείας.
Επίβλεψη.
Λογιστική παρακολούθηση ΕΚΚΟ και ΙΚΑ.
Περαίωση οικοδομικής άδειας.
Νέο πίνακα Κατανομής Ποσοστών Συνιδιοκτησίας.
Στη δε διαδικασία της οικοδομικής άδειας στην πολεοδομία, κατόπιν παρέλευσης δύο εφιαλτικών «εννιαμήνων» και τριών επίμονων επανυποβολών παρεμβλήθηκαν τυπικά καθημερινά προβλήματα σχέσεων μηχανικού-κράτους όπως: ελλιπών φακέλων του αρχείου για ελέγχους υπάρχοντος, μια συνταξιοδότησης ελέγκτριας, μια μετάθεση του ελεγκτή στατικών, διπλούς ελέγχους σε στατικά και φορολογικά, αλλαγής του τρόπου υπολογισμού αμοιβών και φορολογικών και τελικά μιας υπηρεσίας που αναγνώρισε γραπτώς την ιδιαιτερότητα και την πολυπλοκότητα του θέματος…
Περιέργως, πολλά από αυτά που διεκπεραιώθηκαν δεν μπορούν να προβλεφθούν την αρχική στιγμή που συμφωνείται μια αμοιβή. Και φυτρώνουν στο δρόμο σου εκεί που δεν το περιμένεις… Ξαφνικά κι ενοχλητικά. Και τότε δεν γίνεται να αναπροσαρμόσεις τα ήδη συμφωνηθέντα γιατί μάλλον θα χαρακτηριστείς αφερέγγυος! Γι’ αυτό ίσως και πολλοί συνάδελφοι σε τέτοιου είδους εργασίες απομακρύνονται σιωπηλά και διακριτικά!
Μέσα σε όλη αυτή τη διαδικασία που εξαντλεί, κυριαρχεί στη σκέψη και δεν επιτρέπει στη φαντασία να δημιουργήσει, έπρεπε η προσθήκη να αποτελέσει αντικείμενο αρχιτεκτονικής μελέτης. Πέρα από την αναγκαία εμβαδική εκμετάλλευση έπρεπε να συντεθούν οι τρείς διαφορετικοί φέροντες οργανισμοί αλλά και οι τρείς διαφορετικοί τρόποι (και συστήματα) δόμησης, καθένας με τα χαρακτηριστικά τους και την …ηλικία τους, σε ένα ενιαίο αρμονικό και αποδεκτό σύνολο.
Και η παλιά μορφολογία της απρόσωπης και απεριποίητης οικοδομής έπρεπε πια να ανανεωθεί. Να συναντήσει τις σύγχρονες προσταγές και επιθυμίες κατοίκησης. Τις επιθυμίες της «μοντέρνας» κόρης. Αυτές που διακαώς επιζητούσαν η «παραδοσιακή» γιαγιά και η «δυναμική» μαμά για να ανανεώσουν κι εκείνες τη δική τους ζωή, τη δική τους καθημερινότητα.
Η προσθήκη ανυψώθηκε μέσα από το υφιστάμενο κτίσμα. Γεννήθηκε από τα σπλάχνα του παλιού σαν μια νέα ζωή. Μια νέα μορφή με τα χαρακτηριστικά διαβίωσης της παλιάς μορφής. Με νέα υλικά αλλά συγγενικές αποχρώσεις. Με καινοτόμο διαχείριση όγκων και μορφωμάτων που αφήνουν πίσω τις αυθαιρεσίες των παλιών γενεών, αμόλυντο και αναμάρτητο. Όπως η νέα ζωή που έρχεται στον κόσμο.
Με μια κινητική που θυμίζει τον ίδιο τον τοκετό…
Θέλω να πιστεύω ότι κάποια στιγμή, οι ιδιοκτήτριες (μητέρα και κόρη) θα έχουν την οικονομική δυνατότητα να ολοκληρώσουν εκείνη τη μελέτη που από τα προσχέδια τους είχε ικανοποιήσει. Η κατασκευή ολοκληρώθηκε ως προς το περιτύπωμα, το κέλυφος. Ολοκληρώθηκαν τα βασικά στοιχεία για να είναι κατοικήσιμη. Υπολείπεται η συνολική διαμόρφωση των όψεων… ή η ολική αναμόρφωση του κτιρίου…
Ευχαριστώ θερμά τη φίλη, συνάδελφο και φωτογράφο Άννα Περέλα για τα εξαιρετικά φωτορεαλιστικά.












