16/9/12

Οινοποιείο στην Παιανία - Κώστας Πολυχρονιάδης


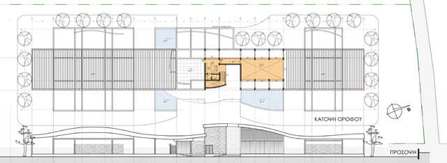
Η ιδιοκτησία βρίσκεται στην εκτός σχεδίου περιοχή των Μεσογείων, λίγο έξω από τα όρια του Δήμου Παιανίας. Η επιμήκης μορφή του σχήματος της ιδιοκτησίας σε συνδυασμό με τους όρους δόμησης επέβαλλε γραμμική ανάπτυξη των υπαιθρίων, ημιυπαιθρίων και κλειστών χώρων της σύνθεσης. Το μέγιστο επιτρεπόμενο πλάτος για την ανάπτυξη του κτιρίου ήταν μόλις 9,00 μ.

Το συνολικό εμβαδόν των κλειστών χώρων είναι 200 τ.μ. ενώ μπορούν να φιλοξενηθούν εκδηλώσεις συνολικής χωρητικότητας πέραν των 1500 ατόμων.




Η ελληνική γη, άρρηκτα συνδεδεμένη από τα αρχαία χρόνια με το αμπέλι και το κρασί, δεν απαιτεί εξάρσεις και δυναμισμούς σε τέτοιου είδους νέα κτίρια. Σε αντίθεση λοιπόν με τις συνήθεις πρακτικές επανάχρησης παλιών βιομηχανικών κτιρίων για να στεγαστούν οινοποιεία, όπου η αρχιτεκτονική έρχεται αντιμέτωπη με την ιστορία και την παράδοση, ένα νέο κτίριο οφείλει να δώσει την υπόσχεση μιας νέας ήπιας βιομηχανίας και προσφοράς. Προσφορά σε γεύση και γνώση.

Το κρασί, από το αμπέλι μέχρι το ποτήρι, παράγεται και εξελίσσεται κατά φάσεις - κύματα. Με διαδικασίες αυστηρές και χρονοβόρες που απαιτούν ταυτόχρονα ενέργεια και υπομονή, Έτσι και η σύνθεση αναπτύσσεται και παρατάσσεται σε ενότητες και μορφώνεται σε κύματα. Με εξάρσεις και παύσεις. Αμπελώνας, διαλογή, επεξεργασία, εμφιάλωση, μουσείο, γευσιγνωσία. Όλα στη σειρά τους, στην ώρα τους, καθένα με τα μυστικά του και τη μαγεία του. Με την αύρα του…







Η μελέτη ανατέθηκε μόλις το 2009, αδειοδοτήθηκε και βρίσκεται σε φάση αναζήτησης πόρων και επιδοτήσεων για την κατασκευή. Με την ελπίδα ότι όλα θα εξελιχθούν ευνοϊκά…

Ευχαριστώ θερμά τη φίλη, συνάδελφο και φωτογράφο Άννα Περέλα για τα εξαιρετικά φωτορεαλιστικά.